Haustypen
Bungalow
Eineinhalbgeschosser
Stadtvilla
Reihenhaus
Eigentumswohnung
Doppelhaushälfte
Grundstücke
Kapitalanlage
Leistungen
Grundstückssuche
Hausplanung
Beratung Baufinanzierung
Hausbau PLUS
Hausbau Ratgeber
Kontakt
Eineinhalbgeschosser 190 A
1,5
Geschoss(e)
Satteldach
Dachart
190 m
2
Wohnfläche
3
Schlafzimmer
Eineinhalbgeschosser 190 A
1,5
Geschoss(e)
Satteldach
Dachart
190 m
2
Wohnfläche
3
Schlafzimmer
Eineinhalbgeschosser 190 A
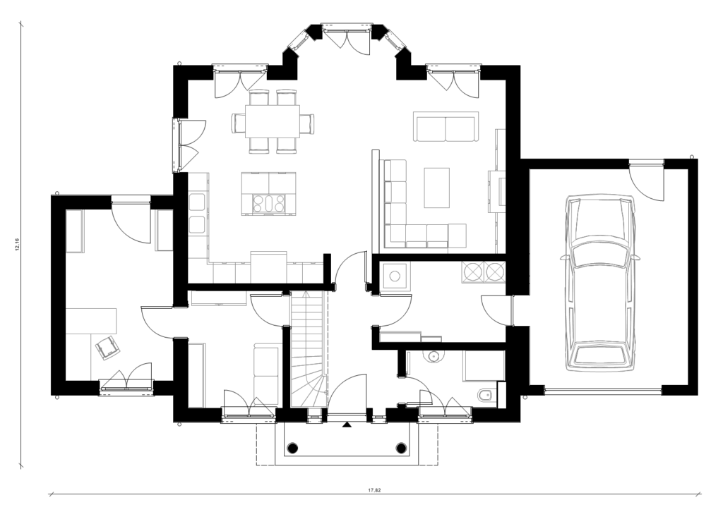
Eineinhalbgeschosser 190 A Grundriss EG 190qm
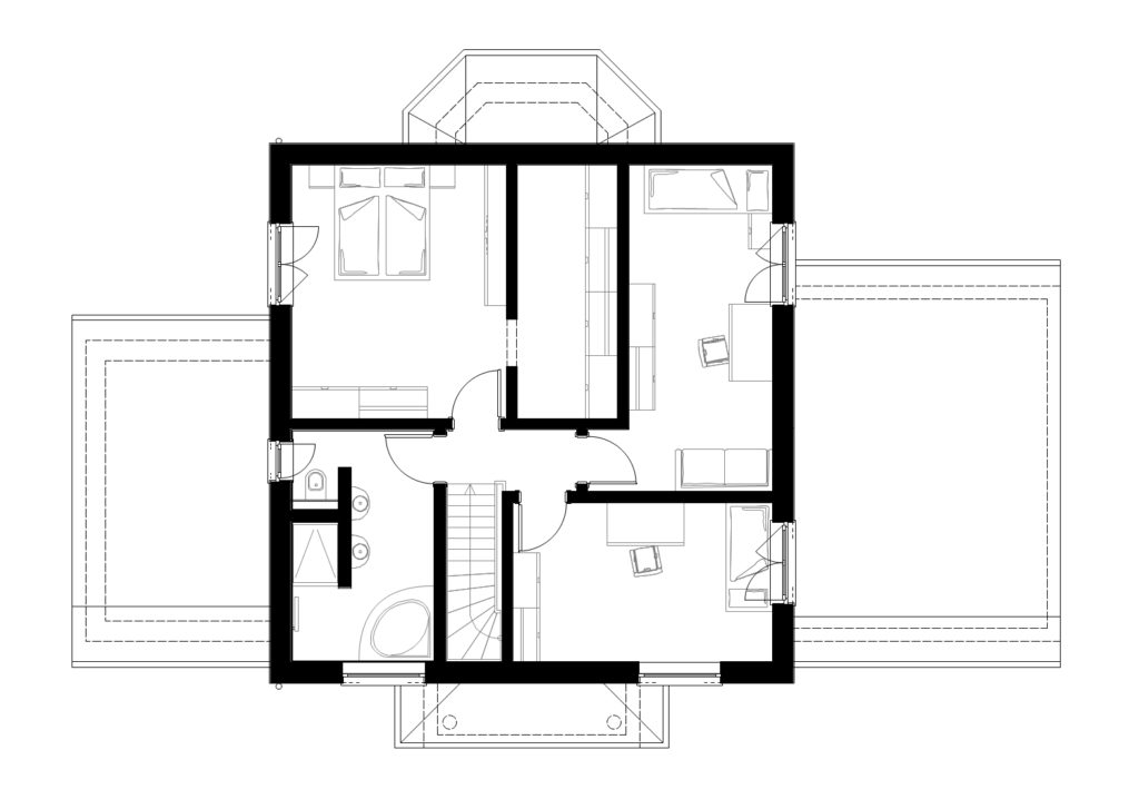
Grundriss Obergeschoss – Eineinhalbgeschosser 190 A (190 m²)
An diesem Haustyp interessiert?
Schreiben Sie uns
oder rufen Sie direkt an:
(030) 209 950 753
Weitere Häuser mit 3 Schlafzimmer(n)
Bungalow 100 C
Weiterlesen
Bungalow 130 C
Weiterlesen
Bungalow 130 mit ELW
Weiterlesen
Bungalow 140 A
Weiterlesen
Menü