Haustypen
Bungalow
Eineinhalbgeschosser
Stadtvilla
Reihenhaus
Eigentumswohnung
Doppelhaushälfte
Grundstücke
Kapitalanlage
Leistungen
Grundstückssuche
Hausplanung
Beratung Baufinanzierung
Hausbau PLUS
Hausbau Ratgeber
Kontakt
Stadtvilla 150 B
2
Geschoss(e)
Pultdach
Dachart
150 m
2
Wohnfläche
4
Schlafzimmer
Stadtvilla 150 B
2
Geschoss(e)
Pultdach
Dachart
150 m
2
Wohnfläche
4
Schlafzimmer
Stadtvilla 150 B
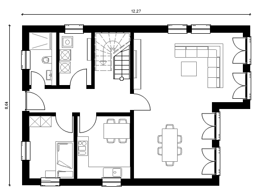
Grundriss Erdgeschoss – Stadtvilla 150 B (150 m²)
Stadtvilla 150 B Grundriss OG 150qm
An diesem Haustyp interessiert?
Schreiben Sie uns
oder rufen Sie direkt an:
(030) 209 950 753
Weitere Häuser mit 4 Schlafzimmer(n)
Eineinhalbgeschosser 120 mit ELW
Weiterlesen
Eineinhalbgeschosser 170 mit ELW
Weiterlesen
Eineinhalbgeschosser 230 mit ELW
Weiterlesen
Stadtvilla 120 A
Weiterlesen
Menü